合肥装饰公司>合肥装修公司>办公室装修>厂房装修>展厅装修>办公楼设计装修 > 知名客户 > 知名连锁品牌/专卖店 > 四季沐歌连锁店面展厅装修设计
项目名称:四季沐歌连锁店展厅项目(该项目设计资料版权为本公司所有,引用需备注本公司名称,侵权将追究相关法律责任。)
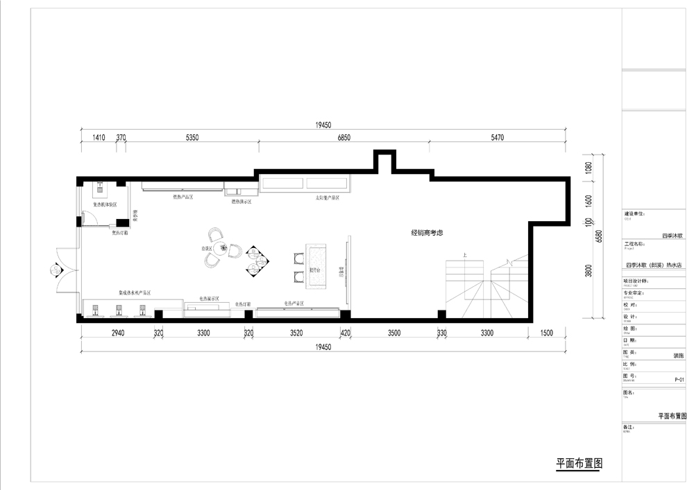
项目简介:本项目为四季沐歌太阳能全国连锁加盟店、展厅设计及施工方案,主要设计项目有展台、展示墙、背景墙、门头以及外立面外装的设计。主体风格为绿色节能,简洁大气,元素统一规整。
项目造价:600-800/平米






安徽半山装饰工程有限公司是一家从事多年的室内设计装饰装修企业,具有总包叁级、装饰装修专项施工乙级以及工程设计专项资质,主要致力于办公室装修、写字楼装修、厂房装修、展厅装修、售楼部装修、样板间装修、民宿装修、店面店铺装修、学校装修、及其它商业空间装修设计施工一体化服务。咨询电话:18919604649
上一篇:暂无
下一篇:暂无