合肥装饰公司>合肥装修公司>办公室装修>厂房装修>展厅装修>办公楼设计装修 > 精品案例 > 淮北商场内部电梯装修设计项目
项目类型:店面店铺装修
项目设计:半山装饰商铺设计部B组
项目面积:50㎡
所在地:安徽·淮北市
设计说明:
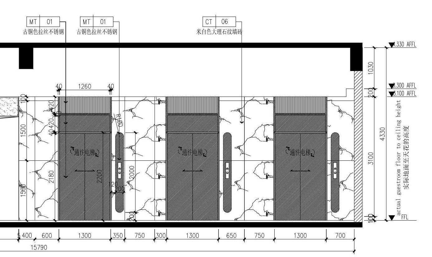
电梯装修设计时应确保所有材料、设备和工艺均符合国家安全标准。
电梯的墙面和地面是装修设计的重点。
在本电梯装修设计中,墙面选用耐磨、易清洁的材料不锈钢。




墙面融入一些艺术元素,提升档次和美感。整个设计采用现代简约风格,搭配简洁线条和灯光效果,营造出明亮、舒适的乘梯环境。
安徽半山装饰工程有限公司是一家从事多年的室内设计装饰装修企业,具有总包叁级、装饰装修专项施工乙级以及工程设计专项资质,主要致力于办公室装修、办公楼装修、厂房装修、展厅装修、店面店铺装修及其它商业空间装修设计施工一体化服务。咨询电话:18919604649
上一篇:伊利厂房办公室会议室翻新改造项目
下一篇:淮北商场精品店铺装修项目