• 加微信沟通

  • 18919604649

合肥装饰公司>合肥装修公司>办公室装修>厂房装修>展厅装修>办公楼设计装修 > 精品案例 > 售楼部/样板间 > 售楼部 > 淮北·金街坊售楼部现代简约装饰装修设计工程

算算装修要花多少钱?

  • *您的隐私将会严格保密,请放心填写!

淮北·金街坊售楼部现代简约装饰装修设计工程

发布时间:2023-11-13 10:27:38 浏览次数:

项目类型:现代简约风售楼部装修设计       专业售楼部装修设计公司    合肥售楼部装修公司

项目设计:半山装饰售楼部设计部A组

项目面积:700㎡

所在地:安徽·淮北市

设计说明:

售楼部装修项目位于淮北市相山区相山南路。以现代简约风格为主,简约而不简单!

售楼部是工程项目形象代言人,不仅能展示项目的专业水准与品牌形象,更能刺激消费者购买欲,并其重要程度不言而喻。是一个小型建筑体的综合设计,它的规模不大,但承载着楼盘形象、客户体验、销售完成等功能,因此是个外在炫目,内在功能高度集中的场所。

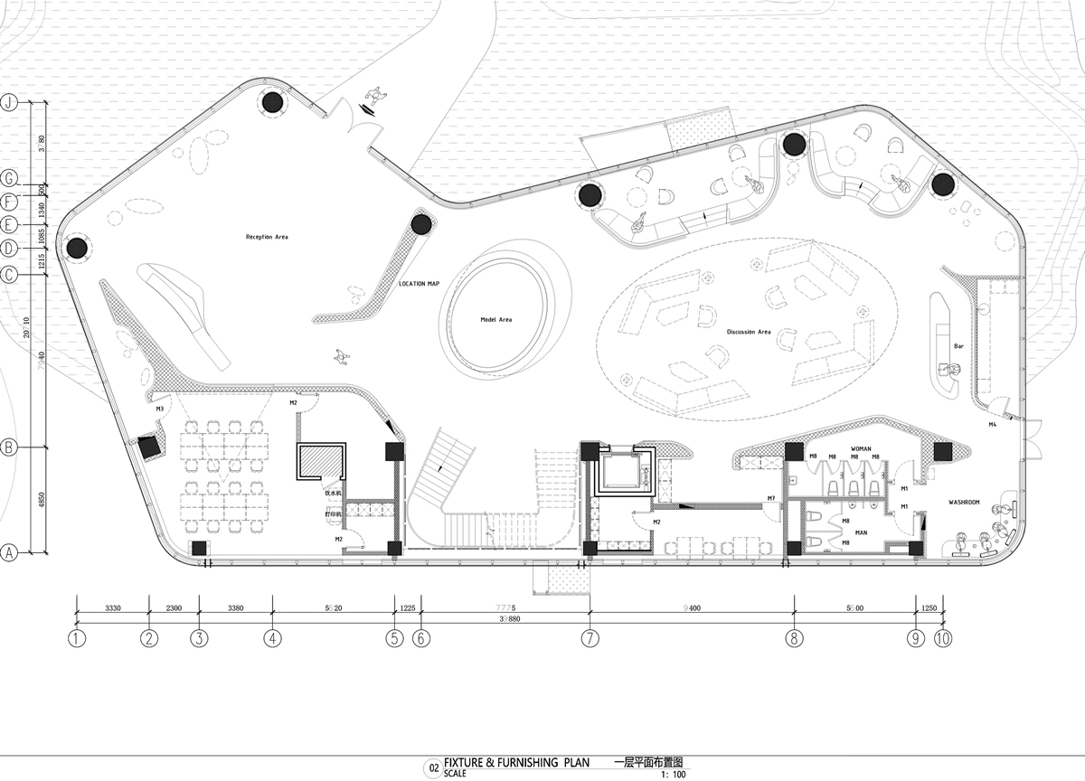
淮北·金街坊售楼部现代简约装饰装修设计工程(图1)



本案采用石材、木制装饰板做主材,在灯具上融入水晶元素提升空间质感,将传统的元素运用现代的手法进行演绎,以现代产物金属的饰品来提升空间。整个营销中心将现代科技完美地融合进现代生活,造就空间的内涵、端正与曲线。

淮北·金街坊售楼部现代简约装饰装修设计工程(图2)



如何将该区域的主角——沙盘,整个区域除了从入门处的穿堂光线,犹如山峦层层叠叠的水晶沙盘吊灯也对室内光线进行了补充。光线通过玻璃幕墙,与沙盘大灯在镜面内与镜面外形成呼应,空间从视觉上得以扩大。

淮北·金街坊售楼部现代简约装饰装修设计工程(图3)



洽谈区的座椅在空间中组合在一起时,自成一幅安静温柔的莫兰迪色系画作。身处空间中的人们,可以在质朴温和的色彩环境中,放下都市生活的疲惫与压抑,感受片刻的美好。

淮北·金街坊售楼部现代简约装饰装修设计工程(图4)


洽谈区对面的水吧区就以咖啡为主题。整体色调为咖色。整洁干净的吧台环境,大理石、不锈钢材质的使用打造出现代感。

淮北·金街坊售楼部现代简约装饰装修设计工程(图5)



与沙盘遥相呼应的是一座巨大的景观楼梯,透明玻璃幕墙和深色石材形成对比。

淮北·金街坊售楼部现代简约装饰装修设计工程(图6)

安徽半山装饰工程有限公司是一家从事多年的室内设计装饰装修企业,具有总包叁级、装饰装修专项施工乙级以及工程设计专项资质,主要致力于办公室装修写字楼装修厂房装修展厅装修售楼部装修样板间装修店面店铺装修学校装修、及其它商业空间装修设计施工一体化服务。咨询电话:18919604649

合肥装修公司     合肥工装公司


装修案例推荐